CCOR - MÓDULOS PREFABRICADOS
Constructora CCOR diseña y fabrica módulos prefabricados, dentro de los cuales podemos destacar:
- • Módulos prefabricados para empresas
- - Módulos de Oficinas
- - Módulos de Sala de ventas
- - Módulos de instalaciones sanitarias
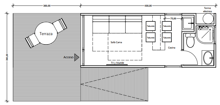
- • Módulos Tiny House
- • Proyectos especiales
